週の真ん中に、こんにちは。
熱戦中のメジャーリーグのワールドシリーズ、今日の第4戦は大谷翔平のピッチング含めて残念な結果でしたね。さすがに昨日の激戦の疲れかな。明日に期待しましょう。局長です。
─── さて、2018年から再開した「第二次・家づくり計画」新シリーズの続編を。

2021年、憧れのRC造(鉄筋コンクリート造)を断腸の思いで諦め、工法を「重量鉄骨造」にシフトしたところで、途中で軽量鉄骨造の「ヘーベルハウス」を挟めてしまったものの、静岡県が本社ながら横浜支店がある某住宅メーカーと巡り合うことができて、さっそく初回オリエンを経てプランニングをスタートした。
2021年10月のことである。
【前話のおさらい】
オリエンから10月ほどが過ぎた10月18日(月) ───

ついに第一弾のプランニングと見積りが届いた。
平面図は、俺が“渾身の企画書”で示した理想の間取りを忠実に再現したものだった。
【渾身の企画書はこちら】

ゆえに、住んでからの生活動線をイメージしてもなんら不備や問題はないのだが、一つだけワガママな不満があった。
それは、オリエンの席で「プロならではの工夫や改善はバンバン入れてほしい」とリクエストしていたのだが、ゼロ回答だったこと。

つまり、設計士でもない施主(俺)の描いた間取りを図面に落とし込んだだけ。
「こうしたほうが住みやすい」といったプロならではの問題提起や解決策がなく、完全に施主任せなプランニングであることに一抹の不安を覚えた。

いや、ひょっとしたら俺の企画書が細かすぎて、「下手に意見をせずに言われたとおりにするほうが得策」と考えさせてしまったのかもしれない。
そうだとすれば、俺にも責任は大いにあるので、まずはこのプランニングでブラッシュアップしていくことにした。
では、平面図(間取り)についての説明を ───

まずは1階。
ヘーベルハウスの最終案とほぼ同じだが、階段の位置が少し異なる。
脱衣所は独立しており、書斎もリクエストどおり北側に配置。
駐車場も角地を利用した2台分を確保している。
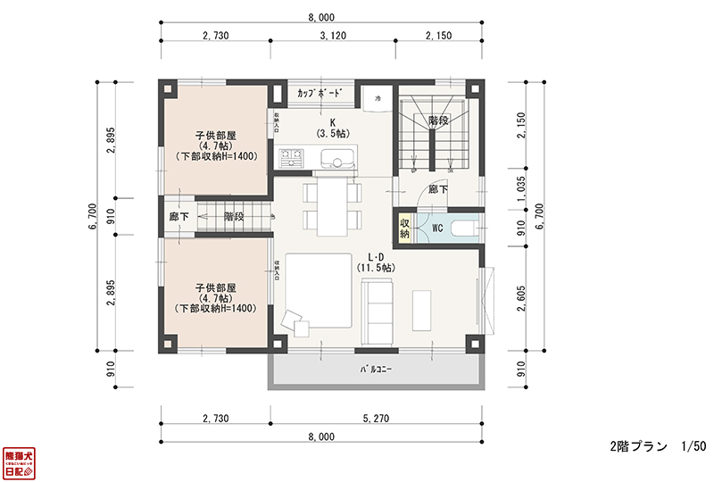
次に2階 ───

リクエストどおり、リビングを経由しないと「子供部屋」には行けない間取りで、その子供部屋には「下部収納 H=1400」の文字が。
これは、子供部屋の下が天井高1.4mの「蔵」になっていることを示している。
2つの蔵の間に階段があり、両方の子供部屋にアクセスできる、ヘーベルハウスの制約では実現できなかった動線が簡単に組み込まれていた。
最後に、「3階」となっているが「屋上」───

ヘーベルハウスのプランとの大きな違いは、屋上へのアクセスが室内階段からということ。
外階段、且つ螺旋階段だったヘーベルハウスとは違い、屋上に階段室であるペントハウスが建つ仕様で、雨風に晒されることなく屋上に出入りできるのだ。
【ヘーベルハウス案の外観パース】
そして、外観パースはこうなっている。

正直なところ、第一印象はお世辞にも「かっこいい!」とは思えなかった。
外壁のカラーリングによるのかもしれないが、全体的に「う~ん・・・」という感想。
賢明な読者のアナタなら、向かって左側の直角三角形にせり出した屋根を見て、疑問を感じたのではないだろうか。

そう、ヘーベルハウスとのプランニングで俺を苦しめることとなった「Lハット」と同じ形状。
完全自由設計の会社に乗り換えたのに、このフォルムを踏襲する必要があるのか ── と。
この理由については、また次回に。
企画書どおりの内容なのに不満を感じる俺はワガママなのか、自問自答しながらの初案だった







コメント
プロならではの提案がなかったのは残念ですが、
局長さんの提案が完璧すぎて口出ししようがなかったとか?
子供部屋の下に蔵があるんですね。
コレなんでヘーベルハウスは出来なかったのかな。
同じような感じだから素人考えだと出来ないのが不思議に感じます。
ココからどのように変わっていったのか楽しみです!
自分の要望にどんなプロ仕様が入ってくるか楽しみにしていたのであれば
この結果を不満に思うのも当然かと。
会社側は先ずは無難な図面を作って、そこから話し合いをしていこうと
していたんでしょうかね。
階段を上がってドアから入れる子供部屋になっていて安心しました(笑)