新しい週に、こんにちは。
先週はどんよりとした天気ばかりでしたが、今週はお日様を拝める日が続きそうですね。雨だと子供たちが外で体力を消耗できなくて困るんですよね。局長です。
─── さて、2018年から再開した「第二次・家づくり計画」の新シリーズを。

“第一次”の強制終了から10年の間に、元々高額だったRC造(鉄筋コンクリート造)の建築費用は、もはや普通の会社員の俺などには手が届かない額となってしまい、次の選択肢であった工法「重量鉄骨造」へと路線を変更していた。
2021年10月のことである。

静岡県に本社があるものの「横浜支店」がある会社に運よく巡り合え、10月7日(木)に初回の打ち合わせを実施。
その席で渡した“渾身の企画書”と俺からのオリエンを受け、一旦先方で精査した上で、改めて後日プランニングの初案を提出するという流れに。
【前話のおさらい】

住宅業界に身を置いてはいるものの設計士でもない施主(俺)が間取りから構造・仕様までガチガチに作り込んだ企画書にも嫌な顔一つせずに受け入れてくれて、俺としては非常に好感触で好印象だった。
何より、ヘーベルハウスのようにレギュレーション上の制約が多いわけではなく、完全自由設計が売りなので、否が応でも期待値が上がる。

この間も、裏側ではヘーベルハウスとの没交渉が続いていたのだが、“蔵”が実現できないことがシミュレーション上で明確になりつつあったので、俺の気持ちはもう完全にこの重量鉄骨住宅の会社に移っていた。

例えるなら、いろいろと嫌な面が見えてきてしまい、完全に気持ちが冷め始めてしまっている今の彼女とは別に、もっと俺のことを深く理解してくれそうな素敵な女性が現れたような、そんな感情の揺れ動き具合だった。
余計に分かりづらくなっただろうか・・・・

以降、その会社からは何度となく電話が掛かってきては、細かな確認をされた。
「この動線はどうイメージしているか」
「ここはどれくらいの広さがあったほうがいいか」
などなど、施主の要望を一つたりとも聞き漏らすことなく「100%すくい上げるぞ」という意気込みがすごかった。
そして、10日ほどが過ぎた10月18日(月) ───

ついにプランニングの初案が送られてきた。
俺が望む“蔵”は実現できているのか。
間取りだけでなく、生活そのものはちゃんと成り立つのか。
期待と不安が入り混じりながら、プランを開いてみる ───

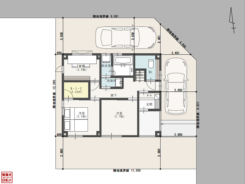
そこには、俺の描いた間取りが忠実に重量鉄骨造で図面化されていた。
角地を利用した2台駐車スペースや、1階の書斎、寝室、親父用の部屋・・・・
2階の平面図も、何一つ問題なく俺の要望がプロットされていた。
つづく・・・・
一度でいいからRC造の家に住んでみたかった。地震でも竜巻でもビクともしないような要塞に







コメント
局長さんの案が練り込まれた図面が送られてきて私もホットしました😆
前の所が酷かったからまた同じようだったらどうしようと。
自由設計だから可能なんですかね。
ハウスメーカーはある程度自由はきくけど限界があるって感じですかね。
自由設計に重量鉄骨だと金額かなり高そう😅
真面目な会社って印象です。
こんなに真剣に向き合ってくれたら、心変わりしちゃいますよ。
元々の局長さんの案が明確だったから、設計士も図面を作りやすかったんでしょうけど。
初案から局長さんを満足させる会社に巡り合えてよかったです。
ただ、この頃って金属の値段がどんどん上がっていた時期だから、
予算との兼ね合いを付けるのが難しそうですね。