木曜日の昼下がりに、こんにちは。
なんだか急激に暑さが和らぎましたね。まぁ数年前の9月末と比べれば十分暑いけど、それでも35℃を超えないだけでもこんなに体力的な負担が減るとは。局長です。
─── さて、これから猛チャージをかける予定の「自宅の建て替え」レポートの続編を。

なかなか好感触だったヘーベルハウスからのプランニング初案に対し、実際の生活動線をいろいろシミュレーションしながら以下の内容でチェックバックをしてみた。
【前話のおさらい】

【1階|書斎】
【1階|サニタリー】

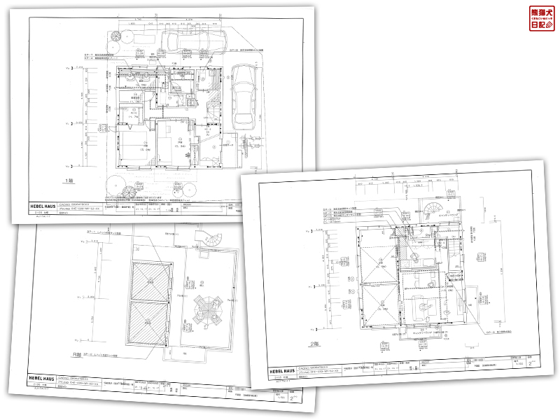
2階は“渾身の企画書”に描いていた理想の間取りとほぼ一致していたので、とくに修正要望はなく、スケルトンによる「蔵」造作さえ上手くいけるならそれでOKという評価だった。
こうして、以降も何回かの修正とチェックバックのラリーを繰り返して、ついに正式なプランニング図面が完成した。

以後はヘーベルハウスのカタログや資料を見ながら、内装や設備についての打ち合わせを進めるのだが、ここで初めて同社への不満を感じることが発生した。

“施主支給”ができないのだ。
いや、正しくは「できる」のだが、メリット感が打ち消される巧妙な仕組みになっていた。

表向きは「後々の保証の問題があるから」と、施主による商品支給は問題ないものの「取付・施工やヘーベルハウスで行う」という条件になっているのだが、その工事費が尋常じゃないくらい高額なのだ。
発注作業や工期調整などの工数を掛けて自ら設備や部材を手配したところで、この工事費を含めると実質的にはいほとんど得がなくなってしまう。

商品代が安くなっても、高額な工事費をプラスすると、結局はヘーベルハウス純正の商品を選んだほうが労力的には得になるような絶妙な費用設定になっているのだ。
例えるなら、結婚式の際に式場の商品・備品ではなく自ら手配したものを使用すると「持ち込み料」が掛かり、結局はほとんどお得にはならないあのカラクリと同じだ。

せっかく住宅業界に身を置いているのに、その恩恵をまるで受けられないことは非常に不満。
この辺りは「さすが大手ハウスメーカーだな」と、悪い意味で感心してしまう。

設備や内装、仕様が固まっていくと同時に費用感もリアルになってくる。
ヘーベルハウスクラスのハウスメーカーともなると、見積りシステムに全ての商品や部材が金額登録されているので、選定すれば勝手に積算されていき、見積書が毎回更新されていく。
その中でも重要な項目が「地盤改良費」。

ヘーベルハウスは、柱や梁などの骨組みが鉄骨造で、外壁材がALC(軽量気泡コンクリート)という構造なので、一般的な木造建築よりも建物の重量が大きい。
よって、緩い地盤だと傾いてしまうリスクもあるため、土地によっては地盤を高重量に耐えられるよう改良が必要なのだ。
改良方法は、“杭”を打つこと。

地中の固い地盤(支持地盤)まで掘削し、セメントミルクを注入して杭にする。
この杭の上に、通常の基礎を造っていくのだが、地盤が弱いほど杭の本数は増えていく。
当然だが、杭が増えるほどに地盤改良費用も上がる。

2015年に起きた鬼怒川の氾濫(関東・東北豪雨)で、周囲の家々が激流に流されていく中、ヘーベルハウスだけがその場に留まっていられたどころか、流れてくる他の家を受け止めていたのは、こういった強固な地盤を造り上げているからなのだ。
そして、我が家の土地の地盤はいかに・・・・
つづく
思いのほかトントン拍子で進んでいくヘーベルハウスでのプラン。もう4年も前の話なのか…






コメント
“施主支給”と言う言葉初めて知りました。
そんな事が出来るんですね。
でもただでさえ決める事が多い家作りなのに自分で手配してとなると普通の人だと大変そうです。
ヘーベルハウス、思いの外すんなりといってて驚きました。2階なんて直す所がないとはなかなか良き。数年前のへんな図面とは雲泥の差ですね。
熊猫犬測量さんならきっといい仕事してくれそうですね😆
「地盤改良費」…なるほど。
重たい分しっかりとする必要があるんですね。
結構かかりそう💦
10年くらい前にヘーベルハウスで建てた人が、5年ほど前に太陽光発電の
後乗せを勧めてきた人に言ってました。
「外壁に傷をつけると保証の対象外になってしまうんで無理です」って。
その時は、ヘーベルハウスって建てた後も厳しいんだねと聞いていたのですが
建てる時の施主支給にも厳しい会社なんですね。
入れたいですよね、自分の家なんだから自分好みのものを。
私がお願いした工務店は、好きなように選んでいいよ。どこの会社のでもOK
って言ってくれました。ゆるゆるです。
重い家だと地盤改良工事も必要なんですね。
合計したらものすごい金額の家になりそうです。